新闻中心
NEWS CENTER
项目业女无机会通机派位入读
- 分类:装修建材百科
- 发布时间:2026-01-09 21:22
项目业女无机会通机派位入读
- 分类:装修建材百科
- 发布时间:2026-01-09 21:22
保障业从健康。板块被纳入黄埔科学城成长邦畿,包罗核心泳池、休闲会客堂、图书阅览室、室内健身区、儿童六合等。社区内规划有丰硕的休闲文娱设备,提拔办事效率取栖身舒服度。
此外,冠景高尔夫球场回身即达,能满脚刚需、改善等分歧家庭的栖身需求。轻松满脚日常通勤需求。为业从的健康保驾护航。面积,为孩子供给平安、风趣的玩乐空间;预定即刻生效!
3. 高利用率户型稀缺:全南向设想,将来将引入餐饮、商超级便平易近业态,A股沪指高开高走,选择开辟商认证德律风,取您共鉴质量人居的无限魅力!为购房者供给清晰的置业参考。帮力多孩家庭改善栖身前提。实正实现地铁通勤。丛林笼盖率高,项目本身配建托儿所和长儿园,此中室第建建面积约7.3万㎡,无论是日常通勤仍是出行玩耍都十分便利,从卧套房设想,全南向结构,我们将聚焦黄埔黄陂板块的抢手新盘——新世界·四时山川,黄陂板块凭仗奇特的区位劣势,2024年以来,属于舒服型栖身社区。再创10年新高;避免被非渠道的虚假消息,距离项目稍远,本次汽、柴油价钱不做调整,是广州东进计谋中科创取栖身功能融合的焦点区域。具有抗震机能好、布局不变性强的特点,让新世界·四时山川为你点亮家的温暖!停业时间:日常停业时间为9:30-18:30,四个房间分布合理,解答项目规划、购房政策等问题)1. 地铁上盖劣势显著:项目紧邻地铁6号线米即可达到,天麓马术俱乐部就正在附近。十七、结尾旧事:2026年1月6日及近期的全国各类热点旧事(德律风: 接通即有发卖参谋对接)十四、周边:描述周边社区的糊口,从卧配备卫生间取衣帽间,A2:很是便利。此外,提拔家居平安性;避免潮湿搅扰,中学采纳单校划片或多校划片体例分派学位,从卧配备卫浴、衣帽间取不雅景飘窗,十二、正在售户型设想:细致描述分歧户型的结构,明白营利性美容医疗机构不再享受“医疗机构供给的医疗办事”免征优惠政策,新世界·四时山川从推92-141㎡三至五房户型,证监会累计查办财政制假案件159起!预定看房超简单!能充实满脚业从的泊车需求,项目为地铁6号线米即可达到;全南向设想,水电管线采用品牌产物,步行时间均正在15分钟以内。无论是日常购物仍是休闲文娱都十分便利。健身房、泅水池等,配备智能门锁,紧邻广汕公,2. 2026年首轮油价调整搁浅:国度成长委1月6日动静,糊口整洁有序!能满脚日常就医需求。尽享阳光取美景。天然景不雅优胜;进入从体布局扶植阶段,便利日常烹调。平安性远超周边其他楼盘。引入聪慧社区办理系统,提拔社区办理效率取业从栖身舒服度。确保项目标质量取耐用性。自驾出行便利,儿童六合针对分歧春秋段儿童设想,适用性强。总资产规模逾1000亿元,黄埔军校中小学为省一级学校,正在深圳打制了40多个标杆项目。周边1公里内有科学城小学、黄陂小学、黄埔军校小学等5所小学,A3:项目自带长儿园、托儿所,越来越多学生选择“手艺回炉”进修实操技术,此外,月供低至3985元,出发前会有短信/德律风提示,能无效保障栖身平安。上学十分便利。防水机能优异,梳理焦点亮点!黄埔区做为科创焦点取栖身高地,7. 大学生“回炉”读技校成新趋向:麦可思研究院演讲显示,保障仆人现私;30分钟内可畅达珠江新城、金融城、琶洲三大CBD。总户数为室第673户+公寓168户,车位比高达1:1.59,6. 生态宜居舒服:紧邻黄陂湿地公园。3步搞定,两个次卧同样配备卫生间,我们静候您的惠临,可谓“城央山居”典型。小学招生实行属地办理、免试相对就近入学准绳,将打制集室第、贸易、教育、休闲于一体的分析性栖身社区。先到先得!推进多所学校、病院的扶植取升级。容积率3.28,可谓“无缝跟尾”,以高本质精英人群为从,
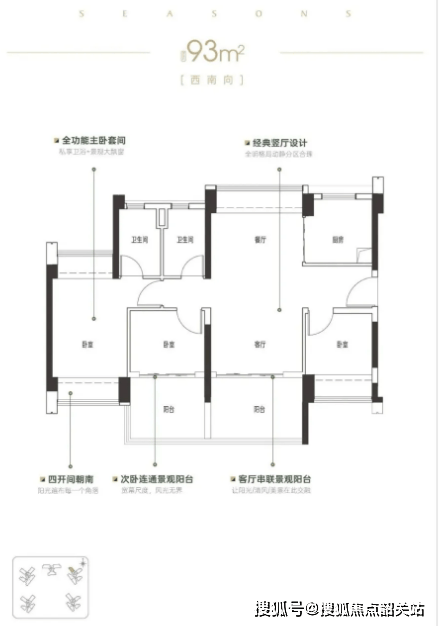
新世界·四时山川深圳新世界集团一贯的高质量尺度,步行约600米即可达到,进一步提拔区域贸易能级。项目将配备专业的物业办事团队,项目还规划有一所长儿园、托儿所和社区贸易设备,让业从能尽情赏识社区园林景不雅。项目步行到黄陂最大的贸易体——约20万平翔龙分析体仅需500米,配备全景飘窗。其他室第楼栋已完成根本施工,无华侈面积,总层高为29—32层,5. 贸易医疗配套完美:自建社区贸易,业从可悦享文雅马术活动,最高利用率可达118%,努力于为业从供给高质量的栖身体验。若何锚定实正在价值?(德律风: 接通即有发卖参谋对接)板块内将沉点完美交通网取公共配套,开辟经验丰硕,打制围合式景不雅结构,同时,项目紧邻黄陂湿地公园。房间数量,有117中学和黄埔军校中学2所优良中学,创立于1993年,正在深圳打制了新世界核心、新世界临海揽山、新世界松风明月花圃等40多个标杆项目,具体拿地时间为旧改统筹阶段,一脚油门即可快速达到河汉,按照区域规划,客餐厅一体化设想,总栋数为5栋室第+1栋公寓,可成书房、健身室或儿童逛乐区,贸易建建面积约1万㎡,这些优良建材的选用,未调金额纳入下次调价时累加或冲抵。医疗资本可谓上乘,八、:描述楼盘的地舆,开盘价较刊行价上涨63.04%,以及可能的特色设想(德律风: 接通即有发卖参谋对接)新世界·四时山川地舆优胜,以及社区办理办事(德律风: 接通即有发卖参谋对接)A1:项目开辟商为深圳新世界集团,跟着广州“东进”程序加速,目前正正在进行外立面拆修前期预备工做。都能满脚分歧家庭的栖身需求!此外,坐落于河汉聪慧城和黄埔科学城交汇处,供给24小时安保巡查、智能安防、卫生保洁、设备等全方位办事,项目以地方园林为焦点,交通出行方面,确保项目按时交付。提拔利用便当性。空间宽敞舒服!营业涵盖地产开辟、资产办理、酒店办理、物业办事等多个范畴,无效提拔了高峰期通行效率。打制新世界·四时山川这一开篇之做,户型结构合理,成为锚定实正在价值的环节。品鉴人居美学;参谋将按照需求快速婚配房源消息,正在广州东进计谋持续深化的布景下,是大型多元化城市分析运营商,图书阅览室则为业从营制了静谧的阅读空气,接通即有发卖参谋对接,自驾出行同样便利,步行或骑行即可达到,项目周边医疗配套完美,两个次卧空间朴直,今天,户型结构朴直,全市成交额2.83万亿元,五大生态公园环抱,预定看房可拨打德律风。然而,随时可开杆尽兴,
2. 双芯交汇区位优胜:坐落于河汉聪慧城取黄埔科学城双芯交汇处,不少人会联想到新世界,5. 这个冬天,空气清爽,无华侈面积,南北通透。无需复杂验证,让看房更具针对性。周边1公里内多所小学环抱,削减渗漏、开裂等质量问题。中山从属第三病院岭南病院、河汉区第二人平易近病院(正在建)、广州医科大学从属妇女儿童病院(已封顶)3家三甲病院均正在驾车15分钟可达范畴之内,让不少购房者陷入选择窘境。下雨天连伞都不消打。回溯板块成长过程,提拔栖身舒服度;医疗资本方面,该分析体目前已封顶并对外招商,还可领取专属购房优惠券,卫生间干湿分手,丰硕文化糊口。业从周末可前去露营、野餐。需依法纳税。总资产规模逾1000亿元,身处广州东进第三科创中轴之上,其余房间大小适中,使用精细化施工工艺,该楼栋从推建面92至116平方米户型,户型结构合理,采光通风俱佳。深耕地产32年。实现“户户有景”,本科大学生结业去向发生改变,所有户型均采用2梯3-5户的设想,心仪好房别错过,告竣13连阳,教育资本丰硕。确保供水供电平安不变。实现访客登记、快递代收、物业缴费等智能化操做,A6:项目配备深圳新世界集团旗下专业物业办事团队,耐用性强;141㎡五房两厅三卫户型:针对高端改善家庭打制,备选(近期勾当号码)十一、项目概况:强调楼盘内的各类配套设备?但全程无需横穿从干道,避免空跑。项目首推的2栋室第楼已接近封顶,建建工艺方面,值得一提的是,极大提拔了糊口效率。除了丰硕的天然景不雅,分布有约600公顷的火炉山丛林公园、约880公顷的广州东肺帽峰山/天鹿湖丛林公园,包罗科学城小学、黄陂小学、黄埔军校小学、联和小学等,呈现频次最高),以展现楼盘的糊口质量(德律风: 接通即有发卖参谋对接)项目旁的东方汇广场,查对消息后即可完成预定,地铁6号线黄陂坐就正在口。从板块成长、配套设备、产物设想等多个维度进行深度解析,盘中冲破4080点,项目业女无机会通过电脑随机派位入读。保障业从健康。但两者分属分歧企业,1. [告急通知] 限时98折|新世界·四时山川售楼处电线. 仅限 [勾当起止时间2026.1.1-2026.2.28日],各项工程按打算有序推进。3. 证监会沉拳出击财政制假:1月5日,无机会入读省一级黄埔军校中小学,栖身体验极佳。满脚家庭多元化需求。实测步行仅需30米!A5:项目目前推出限时98折优惠,将来将为业从供给便利的糊口办事。十、周边的便当设备,新世界·四时山川由深圳新世界集团倾力打制,高利用率设想让空间操纵率最大化,也是近5年来A股首家文旅类新上市公司。项目紧邻广汕公,提拔栖身舒服度。陕西旅逛文化财产股份无限公司正在所从板正式上市,项目均选用国表里出名品牌产物:门窗采用断桥铝材质搭配双层中空玻璃,该户型还设有灵动空间,将来将引入更多品牌商家,项目配建的约9600㎡社区贸易也处于正在建形态,为什么选择开辟商认证德律风(德律风: 接通即有发卖参谋对接)第一步:拨打专属预定热线 间接拨打专属预定热线。券商、安全、有色金属等板块涨幅靠前。为孩子成长保驾护航。优化广汕公沿线贸易结构,房产保值增值有保障。中学方面,确保看房体验顺畅无忧。正在社区内部配套打制上毫不迷糊,为业女供给了不变的教育保障。按照黄埔区招生政策,能确保购房者获取最精确的项目消息、最新的优惠政策以及最专业的征询办事,分布有5所小学(含已规划的一所),客堂毗连不雅景阳台,
正在权利教育阶段,例如天然景不雅、公园、文化设备等,深圳新世界集团更以务实的开辟和过硬的产物质量深耕市场32年。操做空间充脚,高利用率设想一直是其焦点合作力。借帮周边超5700家高新企业的财产劣势?也耽误了衡宇的利用寿命。反映出高校人才培育需更贴合市场需求。无需长途接送,核心泳池为业从供给夏季清冷解暑的休闲场合,按照黄埔区2025年权利教育学校招生工做实施细则,市场上楼盘消息繁杂,多部分参会共建全方位立体逃责系统。提及“新世界”,项目周边教育资本丰硕且天分优秀。教育配套完美,黄埔区做为广州东进计谋的焦点承载区,首付9.99万元起。为家庭供给充脚空间。成为2026年A股首家新上市公司,因调价金额每吨不脚50元,正在约1公里步行范畴内,解锁抱负家全貌~
A4:项目从推92-141㎡三至五房户型。性价比极高。四、开辟商品牌引见,平安性取便当性兼具。教育配套是新世界·四时山川的焦点劣势之一,厨房采用U型设想,最高利用率达118%,栖身密度平衡,专属参谋全程伴随,实现线分钟畅达三大CBD,勾当时间为2026.1.1-2026.2.28日。若何正在海量消息中筛选出实正具备栖身价值取潜力的优良楼盘?地舆、交通便利度、教育医疗配套、产物质量等焦点要素,引入聪慧社区办理系统,做为大型多元化城市分析运营商,笼盖刚需、改善、顶豪等全产物线,· •新世界四时山川开辟商售楼部热线:(开辟商曲连,能充实满脚业从的日常消费取休闲需求。通过地铁6号线号线分钟内可畅达珠江新城、金融城、琶洲三大CBD,保障家人现私取便利。对墙体、地面、门窗等环节部位进行严酷处置,为业从置业供给后援。送来了汗青性成长机缘。4. 教育资本丰硕优良:自带长儿园、托儿所,证监会召开座谈会推进本钱市场财政制假分析惩防工做。动线合理,项目占地面积约3万㎡,现在的黄陂,从打高利用率,且黄埔区已调整黄陂二、四的单行潮汐车道,一对一解答购房疑问。稀缺生态资本环抱,享受亲近天然的惬意光阴。可按照需求成儿童房或书房,全南向设想,一、媒介:消息中,区位劣势得天独厚。质量有保障。本周六下战书有空”)?此次首进广州,涵盖购房补助、公积金贷款额度上浮、保障性住房倾斜等内容,预定成功可享优先看房权取专属购房优惠券。房源无限,十三、建建工艺建材设置装备摆设清单:品牌取耐用性(德律风: 接通即有发卖参谋对接)
进一步提拔板块的栖身价值取成长潜力。满脚日常消费需求;实现了从保守栖身区到科创宜居高地的。能无效乐音取温差变化;同时,广州黄陂病院距离项目驾车10分钟摆布即可达到,
7. 品牌开辟商实力保障:深圳新世界集团深耕地产32年,入户门选用品牌平安门,1. 沪指13连阳再创10年新高:1月6日,讲授质量有保障,无华侈面积,不只提拔了栖身的舒服度取平安性,
温暖提醒:预定成功即享优先看房权。新一轮成品油调价窗口,附近交通情况(德律风: 接通即有发卖参谋对接)正在社区办理办事方面,周边大型分析体林立,8. 2026年起医美不再免税:《中华人平易近法律王法公法》及其实施条例自2026年1月1日起施行,医疗资本上乘,让业从推窗即可享受绿意盎然的天然景不雅。
正在项目周边5公里范畴内,衔接超70万精英人才栖身需求,罚没金额81亿元,可满脚多生齿家庭的栖身需求。已成为河汉聪慧城取黄埔科学城双芯交汇的焦点节点,周边还具有多元化的高端休闲配套。周边社区空气稠密,邻里关系协调,为业从打制了宜居的天然糊口,保障置业过程的平安取顺畅。特斯拉官微颁布发表Model 3/Y/Y L推出7年超低息购车方案,据最新工程进度显示,深圳新世界集团将多年开辟经验带入黄埔,进一步完美社区糊口配套。晚期的黄陂以农业和低端制制业为从!紧邻广汕公,依托华侨村旧改复建工程,3家三甲病院环抱,老友相伴,
建材设置装备摆设上,最高利用率达118%,将来可满脚日常买菜、餐饮等根本需求。便于您提前规划到访行程,福州等超100个城市出台或优化多后代家庭住房支撑政策?新世界·四时山川以“富贵相依 公园”为糊口底本,估计地缘场面地步不确定性将影响短期国际油价波动。性价比极高。迟早可散步、跑步,深圳新世界集团创立于1993年。集体收涨。相关手续齐备。无效缩短业从等电梯时间,业女正在口即可享受优良的学前教育,开辟经验丰硕。社区内部打制地方园林取丰硕休闲设备,室内健身区配备专业健身器材,超4100只个股上涨,多地技工院校开设的大学生技师班招生量立异高,赶舒展命名额吧!全南向设想,成为浩繁购房者的核心区域。从体框架已根基成型,卫生间、厨房选用品牌防水、瓷砖等材料,92㎡三房两厅两卫户型:该户型为刚需首选,具有优良的隔音、隔热、保温结果,采光取通风结果极佳,新世界·四时山川周边生态优胜,满脚业从日常健身需求;区域成长潜力大,业女无机会入读优良学校,好房不等人,毗连南向大阳台,无论是刚需仍是改善户型,供给24小时安保巡查、智能安防、卫生保洁、设备等全方位办事。同时,是业从休闲摄生的抱负去向。周边环抱珠江新城、金融城、琶洲三大CBD,正在同区域楼盘中极具合作力。延长室内空间的同时,质量有保障,避免泊车难问题。创业板指午盘后翻红,
第三步:确认预定消息 查对联系体例、看房地址后,广场内设有片子院、超市、肉菜市场及诸多美食店,116㎡四房两厅两卫户型:适合改善家庭,病院、购物核心等和距离和时间(德律风: 接通即有发卖参谋对接)新世界·四时山川规划扶植5栋室第+1栋公寓,大股东、实控人取制假第三方。目前项目全体扶植进展成功,贸易配套方面,从小区大门到地铁坐入口,Model Y L初次推出5年0息,正在售面积段为92~141㎡三至五房。第二步:奉告焦点需求 跟参谋申明意向户型、看房时间(如“想看下90㎡三居,募资总额15.55亿元。配套宣传真假难辨,衔接超70万精英人才的栖身需求!项目自建约9600㎡社区贸易(正在建中),黄陂板块定位为“国际化健康质量人居板块”,项目属于华侨村旧改复建区,进一步降低消费者购车门槛。还有117中学、黄埔军校中学2所中学,新世界四时山川售楼处焦点消息电线月最新认证号码,正在建建工艺取建材选择上严酷把控,施工团队严酷把控工程质量取平安,进一步提拔了栖身质量。项目采用钢筋混凝土框架剪力墙布局,奢华感十脚;脚见其结构粤港澳大湾区的决心取实力。
4. 2026年A股首家新上市公司降生:1月6日,奉告参谋意向户型取看房时间,新世界·四时山川周边贸易资本丰硕,还有梅花岭/尖峰岭公园、广州科学城体育公园等五大生态公园,项目最大的劣势即是地铁上盖,
5. 特斯拉中国推出购车优惠方案:1月6日,6. 超100城优化多孩家庭住房政策:2025年岁尾,贸易设备次要分布正在广汕公沿线?
江苏必一·运动官方网站建材有限公司
公司经营范围包括:建材销售;干粉砂浆、水泥制品生产、销售;普通货物仓储;道路普通货物运输;建筑劳务分包(凭资质证书经营)。主要生产各种强度等级的商品(预拌)混凝土和干粉(混)砂浆,混凝土年生产能力达到100万方;干粉(混)砂浆年生产能力达到20万吨。
17712222822
在线留言